手机版
二维码
资讯信息
爱心商家
沂蒙商城
影视传媒
首页
资讯信息
爱心商家
沂蒙公益
沂蒙商城
影视传媒
当前位置:
首页
»
资讯信息
»
液压设备
» 正文
工程洗车机:
洗车机
工程洗车机:
洗车机
工程洗车机:
洗车机
浏览:1次
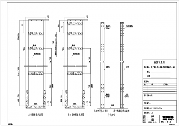
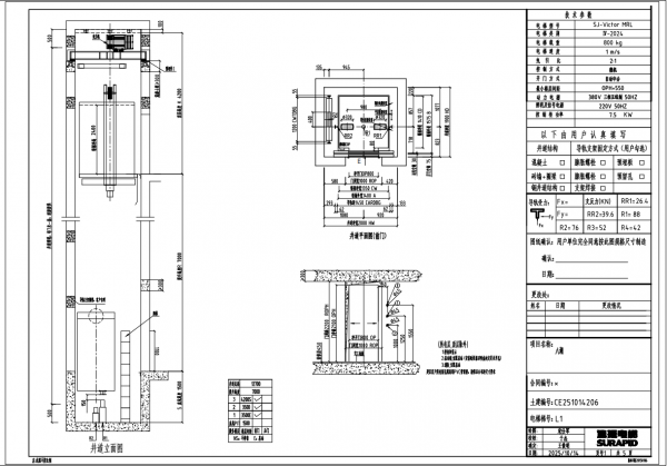
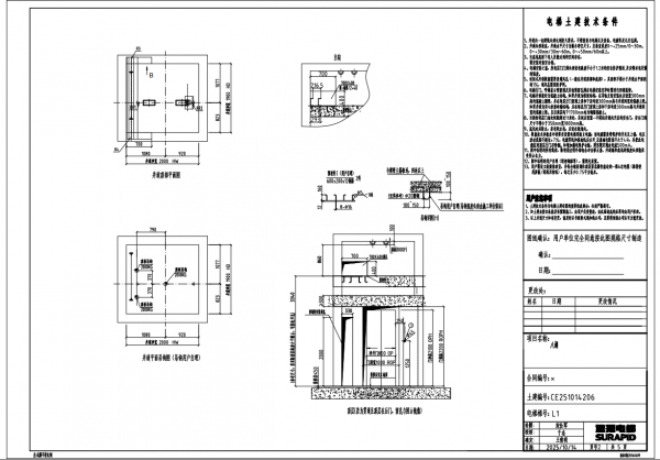
韩强智能商用电梯基础图纸
发布时间:2025-10-14
来源:
我要评论
[
导读
]韩强智能商用电梯基础图纸
韩强智能商用电梯基础图纸
上一条:
韩强智能升降货梯入驻河东机场商圈解决当地商户货物运输难题
下一条:暂无
相关资讯
韩强智能商用电梯基础图纸
韩强智能升降货梯入驻河东机场商
韩强智能家用电梯为企业和个人带
韩强智能电梯光幕,创新技术引领
如何保障工厂高效运转同时又确保
为何物流公司纷纷采用韩强智能液
韩强智能液压货梯报价单
韩强智能饲料搅拌机,高效混合均
韩强智能家用电梯
洗车机
家用电梯
洗车机
混凝土锂电振动棒
400企业号
赢网客">
赢网客" src="http://www.xinyimengwang.com/file/upload/202508/25/081234461.jpg" width=125 height=95>
赢网客
搅拌机
喷雾机
洗车机
沂蒙公益网成立十周年,免费送十
洗车机
请文明聊天,禁止发布违法信息!如发现,情节严重送司法机关处理!
共
0
条 [查看全部]
相关评论
图说资讯
韩强智能商用电梯基础图纸
韩强智能升降货梯入驻河东机场商
韩强智能家用电梯为企业和个人带
韩强智能电梯光幕,创新技术引领
如何保障工厂高效运转同时又确保
为何物流公司纷纷采用韩强智能液
随机阅读
韩强智能液压货梯在临沂物流园升级调试中
兰山区物流园安装一台韩强智能货梯进行中
液压升降货梯出现故障会有哪些问题存在?
如何保障工厂高效运转同时又确保工人安全?
安全,省心,临沭郑山安装韩强智能液压货梯
引领物流革新,韩强智能液压货梯打造垂直运
韩强智能液压油缸生产
为何物流公司纷纷采用韩强智能液压货梯?高
兰山区汪沟安装韩强智能液压货梯
液压电梯安全吗
相关阅读
韩强智能商用电梯基础图纸
韩强智能升降货梯入驻河东机场商圈解决当地
韩强智能家用电梯为企业和个人带来了全新的
韩强智能电梯光幕,创新技术引领行业。多重
如何保障工厂高效运转同时又确保工人安全?
为何物流公司纷纷采用韩强智能液压货梯?高
韩强智能液压货梯报价单
兰山区汪沟安装韩强智能液压货梯
韩强智能液压货梯在临沂罗庄区付庄街道安装
韩强智能液压货梯在临沂物流园升级调试中
网站首页
Array |
网站地图
|
鲁ICP备16039989号-23
©2016-2020 新沂蒙网 All Rights Reserved